Двухтрубная система с верхней разводкой
Магистраль подающего трубопровода прокладывается под потолком, обратка – по полу. Это объясняет постоянно высокое давление в системе, позволяет применять трубы одинакового диаметра даже при формировании конструкции самотечного типа. Расширительный бак нужно устанавливать на чердак, обязательно утеплив его, или поместить между перекрытием – нижняя часть остается в отапливаемой комнате, верхняя – на чердаке.
Специалисты рекомендуют монтировать верхнюю магистраль выше уровня оконных проемов. В этом случае доступно размещение расширительного бака под потолком, при условии достаточной высоты стояка, чтобы обеспечить давление в системе. Труба обратной подачи выкладывается по полу или опускается под него.

В случае с верхней разводкой на виду остаются верхние трубы, что не улучшает внешний вид комнаты, также часть тепла остается наверху, не используется для прогрева помещений. Можно пустить трубы проходящей магистрали под радиаторами, а чтобы обеспечить нормальную циркуляцию, установить насос, что позволяет применять трубы малого диаметра.
В двухэтажных строениях частного типа верхняя разводка считается эффективной и помогает добиться хорошего прогрева всех комнат. Расширительный бак ставится в самую высокую точку, котел – в подвал. Такая разница высоты гарантирует оперативность транспортировки теплоносителя, доступность подключения емкости для обеспечения ГВС – циркуляция воды обеспечит постоянный приток горячей воды ко всем приборам.
Если установить в доме газовый или энергонезависимый котел, то схема становится автономной. Для сокращения расходов следует рассмотреть вариант совмещения одно- и двухтрубной системы отопления. Например, сделать теплый (одноконтурный) пол на втором этаже, а на первом оборудовать двухконтурную конструкцию.
Достоинства схемы в:
- скорости движения теплоносителя;
- максимальном и ровном прогревании помещений;
- исключении риска образования воздушных пробок.
К минусам относят большой расход комплектующих, недостаточность энергии для прогрева больших помещений и трудности с размещением расширительного бака.
Однотрубная система отопления
Современные строители придерживаются однотрубной схемы разводки отопления для сооружения с двумя этажами. Такая схема подразумевает установку абсолютно всех излучателей тепла в помещении. В итоге образуется длинная цепочка из соединенных труб. По ним проходит поток горячей воды, которая нагревает все радиаторы. Данная схема поспособствует равномерному нагреванию воздуха во всем помещении.
В случае если площадь дома очень большая, то можно установить двухтрубную схему эффективного водяного отопления. Не смотря на то, что такая схема очень дорогостоящая, эффективность нагревания воздуха будет максимальной. Для этого следует подключить подводку ко всем радиаторам в индивидуальном порядке. В данном случае работает коллекторная схема отопления двухэтажного дома.
Коллекторная схема отопления двухэтажного дома:

Если применить именно эту схему отопления, то можно намного эффективнее нагреть все помещение, а также лучше контролировать температуру, даже в очень большом по размеру двухэтажном доме.
Не менее популярна коллекторная схема, реализованная для отопления двухэтажного строения. Основной особенностью является ее низкая цена и высокая эффективность. Такая схема позволяет проделывать скрытую укладку труб, что существенно повысит эстетичность помещения. Провести установку коллекторной схемы отопления можно самостоятельно, при этом, не имея нужных знаний и высокой квалификации.
Профессиональные строители советуют объединять несколько схем отопления, чтобы добиться нужного результата.
Однотрубная система отопления двухэтажного дома:

Двухтрубная система отопления двухэтажного дома:

Схема отопления современного городского 2-этажного дома существенно отличается от схемы отопления городской многоэтажки и одноэтажного сооружения.
Во-первых, система отопления индивидуального двухэтажного дома должна быть очень проста в монтаже, так как не всегда удается нанять высококвалифицированных ремонтников, чтобы они грамотно спроектировали работу. Также отличие системы отопления частного двухэтажного дома является в том, что ее можно легко установить самостоятельно, чего не сделаешь в многоэтажном или одноэтажном сооружении.
Для частного дома предусмотрены более надежные системы отопления, с использованием высококачественного материала. Современные строители отдают предпочтение двухтрубным системам, которые очень надежные и экономичные в процессе эксплуатации
Это очень важно требование при установке системы отопления в двухэтажном доме
Еще одним отличием является то, что в двухэтажном доме не требуется установка дополнительного насоса, в отличие от городской многоэтажки, где нужно больше водного напора для более эффективной поставки воды в квартиры. Как известно, в квартирах многоэтажки требуется установка дополнительного котла, для того, чтобы лучше контролировать температуру в помещении.
Однотрубная схема отопления двухэтажного дома с принудительной циркуляцией:

При монтаже системы отопления в сооружение с двумя этажами, не обойтись без принудительной циркуляции всего помещении, в противном случае упадет эффективность обогревания, а это существенные потери денежных средств. Также могут случаться перебои с электропитанием и отопительными приборами. Из-за того, что напор воды очень большой, специалисты советуют приобрести регулятор мощности водного потока, чтобы не вывести из строя трубы.
Для двухэтажного дома лучше всего приобрести конденсационный котел. Это позволит извлечь максимум тепла, за счет того, что происходит лучшая конденсация при сгорании продуктов. Для многоэтажного дома, соответственно, специалисты рекомендуют покупать твердотопливные котлы, так как в них топливо сгорает при ограниченных запасах воздуха, что часто бывает в квартирах на последних этажах.
Перед тем, как делать выбор котла для двухэтажного сооружения, следует определить общую площадь всего жилья, чтобы подобрать наиболее подходящий по мощности конденсационный котел.
Специалисты не советуют самостоятельно устанавливать данное оборудование, так как малейшие ошибки могут повлечь за собой большие проблемы с давлением в системе отопления частного двухэтажного дома.
Лучше всего доверить такую работу высококвалифицированным специалистам — котловикам, которые имеют большой опыт в установке котлов в именно двухэтажный дом.
Установка расширительного бака
Полноценная работа отопительной системы невозможна без использования расширительного бака, который необходим для сбора излишков воды из системы при расширении теплоносителя в процессе нагрева.
Месторасположение расширительного бака определяется, исходя из архитектурных особенностей дома. Лучшим местом для него всегда считался чердак. Но в двухэтажном доме расстояние от котла до верхней точки магистрали трубопроводов дает возможность теплоносителю свободно циркулировать по системе отопления.
Исходя из этого, нет необходимости поднимать расширительный бак на чердак. Если площадь позволяет, его без ущерба для отопительной системы можно установить и на втором этаже. Труба подачи прокладывается с одинаковым успехом под потолком или под подоконниками.
Какая система отопления лучше: однотрубная или двухтрубная?
Наиболее экономичным будет монтаж однотрубной схемы отопления. Её можно использовать для обогрева небольшого дома. Для большого строения необходима двухтрубная схема подключения радиаторов. Она позволит равномерно прогревать помещения, но обойдётся дороже.

К тому же её работа потребует присутствия циркуляционного насоса, питающегося от электричества.
Если необходима полностью автономная система отопления стоит обратиться к однотрубной схеме и использовать её в подходящих вариантах — вертикальном отоплении по стоякам или в горизонтальном — на каждом этаже вашего дома.
Главный критерий качества работы и правильного выбора системы — это тепло в доме, небольшой расход энергоносителя и надёжность вашего отопления.
Двухконтурная разводка батарей
Двухтрубная система отопления отличается от однотрубной разделением на две трубы — подачи и возврата теплоносителя. Она обеспечивает равномерный обогрев всех комнат. Такую разводку используют в большинстве новых домов.
Принцип работы
В двухтрубной схеме вода из котла поступает к радиаторам по подающей трубе (магистрали).
Возле каждого радиатора подающая магистраль имеет соединительный входящий патрубок, через который теплоноситель поступает в батарею. Подающая магистраль заканчивается возле последнего радиатора.
Кроме входящего патрубка, у каждого радиатора предусмотрен выходящий патрубок. Он соединяет её с обратной трубой. Обратная магистраль начинается от первой батареи и заканчивается входом в котёл.
Таким образом, нагретая вода поступает в радиаторы равномерно и одинаковой температуры. Из каждого радиатора вода выводится в обратную трубу, где собирается и подаётся в котёл для последующего нагрева. Благодаря такому движению теплоносителя все комнаты в помещении прогреваются одинаково.
Чем отличается
Двухтрубная система отопления включает в себя элементы однотрубной системы и дополнительные устройства. Кроме котла, радиаторов, труб подачи и обратного сбора воды (так называемой обратки), двухтрубная схема включает также циркуляционный насос.
Большая протяжённость магистралей, наличие углов и поворотов в трубах подачи осложняет движение теплоносителя. Поэтому необходима его принудительная циркуляция электрическим насосом.
Фото 1. Циркуляционный насос модели 32-40, напряжение 220 Вольт, , Китай.
Также в двухтрубной схеме присутствует больше кранов, регулирующих подачу воды и её количество. Такой кран устанавливается перед каждым радиатором — на входе и на выходе.
Классификация по расположению
В горизонтальной двухтрубной системе трубы соединяют радиаторы горизонтально. Такая схема работает в отоплении одноэтажного дома или одного этажа многоэтажного коттеджа.
В вертикальной двухтрубной системе трубы соединяют радиаторы, расположенных друг над другом, в одном «стояке». При этом есть отличия от однотрубной вертикальной схемы. Здесь — благодаря наличию трубы подачи и обратки, в вертикальном отоплении могут использоваться батареи любой ширины — многосекционные (поскольку стояки подачи и обратки могут быть удалены друг от друга). Поэтому эффективность двухтрубного вертикального обогрева — выше.
Справка! Желательно, чтобы батареи комнат, расположенных друг над другом, имели одинаковое количество секций. Так проще прокладывать вертикальную трубу обратки.
Нижняя и верхняя обвязка: что эффективнее
Термин «нижней» и «верхней» обвязки обозначает способ подключения батарей в систему отопления. При нижней обвязке входящая вода попадает в батарею через нижний патрубок.
Если она выходит из радиатора также внизу, то эффективность работы радиатора будет снижена на 20-22%.
Если выходящий патрубок будет расположен вверху, то эффективность работы радиатора будет снижена на 10-15%. В любом случае при нижней подаче воды в батареи эффективность обогрева снижается.
При верхней обвязке (подаче) входящий патрубок подключается к радиатору в верхней части. В таком случае движение теплоносителя организовывается эффективнее, батарея будет работать на 97-100% (97% — если входящие и выходящие патрубки расположены с одной стороны радиатора, и 100% — если входящий патрубок с одной стороны сверху, а выходящий — с другой стороны снизу).
Достоинства и недостатки
Достоинства:
- Подходит для организации отопления частных домов большой площади, при этом в систему обязательно врезается циркуляционный насос.
- Обогревает все комнаты на этаже или в стояке равномерно.
Недостатки:
- Обходится дороже однотрубной системы, поскольку требуется вдвое больше материалов — труб между котлом и радиаторами, а также соединительных устройств, кранов, вентилей.
- Циркуляционный электрический насос делает работу системы зависимой от наличия электричества.
Важно! Увеличение количества труб и количества теплоносителя в системе — приводит к росту гидродинамического сопротивления и не даёт возможность воде двигаться самотёком. Необходима принудительная циркуляция и работающий циркуляционный насос
Двойные схемы отопления двухэтажного дома
Рассматривая схемы отопления двухэтажного частного дома для монтажа своими руками, можно отметить, что некоторые специалисты используют двойные схемы – здесь монтируются однотрубные и двухтрубные участки. Например, если по пути следования теплоносителя стоит маленькая комнатка с небольшим радиатором, то через нее можно пройти одной трубой.

Схема коллекторной системы отопления с принудительной циркуляцией теплоносителя.
Мы уже говорили, что лучше всего подавать воду на этажи раздельными трассами – при необходимости, одну из них можно быстро перекрыть и ограничить подачу тепла. Также возможна вполне экономичная схема, когда трубы горизонтальные участки проходят только по первому этажу, а подача тепла на верхний этаж осуществляется путем сооружения вертикальных стояков на каждую отопительную батарею (или часть батарей).
Следующая схема предусматривает установку своеобразного коллектора в чердачном помещении. Туда поднимается одна вертикальная труба, подающая в этот коллектор горячий теплоноситель. После этого он самотеком распределяется по батареям отопления, протекая сверху вниз. Целесообразность применения такой схемы определяется специалистом теплотехники, а суть ее заключается в равномерном распределении тепла и экономии на трубах.
Схема с коллектором интересна тем, что она является однотрубной и двухтрубной одновременно, сочетая в себе достоинства обеих систем.
Схемы монтажа системы отопления в частном доме
На практике применяются два вида систем – схем (или видов разводки труб), а именно:
- однотрубная;
- двухтрубная.
Каждая из них имеет свои преимущества, недостатки и используется в разных случаях.
Однотрубная система
Этот тип разводки более дешевый и простой. Система строится в виде кольца – все батареи соединяются последовательно друг с другом, и горячая вода движется от одного радиатора к другому, затем попадает снова в котел.
Как видно на рисунке, все батареи соединены последовательно, а теплоноситель проходит каждую из них.
Эта схема отопления весьма экономична в своем исполнении, ее просто монтировать и проектировать. Но в ней присутствует один существенный недостаток. Он настолько весомый, что многие отказываются от такой разводки и предпочитают более дорогую и сложную – двухтрубную. Проблема в том, что по мере продвижения теплоносителя он будет постепенно остывать. До последней батареи вода будет поступать чуть теплой. Если же увеличить мощность котла, то первый радиатор будет слишком сильно нагревать воздух. Такая неравномерность распределения тепла и заставляет отказываться от простой и дешевой однотрубной системы.
Можно попробовать выйти из сложной ситуации, увеличив количество секций последнего радиатора, но и это не всегда эффективно. Отсюда напрашивается вывод, что однотрубную разводку можно использовать в том случае, когда количество соединенных последовательно батарей составляет не более трех.
Некоторые выходят из ситуации следующим образом: подключают к котлу насос, тем самым заставляя воду двигаться в принудительном порядке. Жидкость не успевает остывать и проходит через все радиаторы, почти не теряя температуры. Но и в этом случае вас ждут некоторые неудобства:
- насос стоит денег, а значит, растут затраты на установку системы;
- увеличивается потребление электроэнергии, так как насос работает от электричества;
- если отключат электричество, то не будет давления в системе, а значит, не будет и тепла.
Вывод. Однотрубная система эффективна лишь для маленьких домиков с 1-2 комнатами, где используется небольшое количество радиаторов. Несмотря на свою простоту и надежность, она не оправдывает себя в загородных домах, где нужно устанавливать более трех радиаторов на всю жилую площадь.
Двухтрубная система
Горячая вода подается по одному трубопроводу, а остывшая – по другому. Таким образом обеспечивается равномерное распределение тепла по всем батареям.
Такая разводка отопления в частном доме будет намного эффективнее и лучше однотрубной. Хотя она и дороже в исполнении, и сложнее в монтаже, но позволяет равномерно распределять тепло по всем батареям, что поможет создать комфортные условия. В отличие от однотрубной, в этой разводке труба с горячей водой подводится под каждый радиатор, а остывшая жидкость спускается по обратной линии в котел. Так как теплоноситель подается сразу на все батареи, то и последние нагреваются одинаково.
Эта система не намного сложнее первой, придется покупать большее количество материалов, так как подводить трубы придется к каждому радиатору.
Двухтрубная система может работать по двум схемам:
- коллекторной;
- лучевой.
Лучевой вариант разводки более старый. В этом варианте подающая труба устанавливается в верхней точке дома, после чего делается разводка труб на каждую батарею. Благодаря такой конструкции схема и получила название – лучевая.
Первая схема работает следующим образом: на чердаке необходимо установить коллектор (специальное устройство, состоящее из множества труб), который распределяет теплоноситель по трубам отопления. В этом же месте нужно установить запорную арматуру, которая будет отсекать контуры. Такая конструкция достаточно удобная, она облегчает ремонт всей линии и даже отдельного радиатора. Схема хотя и надежна, но у нее есть один существенный недостаток – сложный монтаж с большим количеством материалов (запорные арматуры, трубы, датчики, устройства контроля). Коллекторная схема разводки труб отопления схожа с лучевой, но более сложная и эффективная.
В отличие от однотрубной системы, двухтрубная не нуждается в дополнительной принудительной циркуляции теплоносителя. Она и без насоса показывает высокую эффективность.
Сложности в эксплуатации
При эксплуатации однотрубной отопительной системы существует одна главная трудность. Однотрубная схема отопления частного дома будет менее эффективной в случае, если в цепочке отсутствует такой компонент, как насос. Посредством насоса можно обеспечить наилучшую циркуляцию теплоносителя по всем трубам системы. Для того чтобы организовать правильную работу системы, необходимо произвести монтаж разгонного коллектора.
Система отопления с разгонным коллектором
В этих отопительных элементах должен постоянно поддерживаться такой разгон. Насколько эффективной будет вся однотрубная система отопления многоквартирного дома, зависит от того, на какой высоте расположена верхняя область коллектора разгона. От того, насколько качественно был произведен монтаж системы отопления, будут зависеть температурные показатели, а также уровень шума, который производится при работе системы отопления. Если частный дом имеет два или больше этажей, то установка коллектора разгона не обязательна, так как обогревательная труба в таком случае будет находиться достаточно высоко.
4 Принудительный способ
Применение схем отопления с принудительной циркуляцией в двухэтажных домах используется из-за протяжённости линий системы (более 30 м). Такой способ осуществляется при помощи циркуляционного насоса, перекачивающего жидкость контура. Он монтируется на входе в отопительный прибор, где температура теплоносителя является самой низкой.
При замкнутом контуре степень напора, которую развивает насос, не зависит от этажности и площади строения. Скорость водяного потока становится больше, поэтому при прохождении по трубопроводным линиям теплоноситель сильно не остывает. Это способствует более равномерному распределению тепла по всей системе и использованию теплогенератора в щадящем режиме.
Отопительная система с циркуляционным насосом отличается практичностью: в весенний и осенний периоды, когда нет морозов, её можно использовать с применением низкотемпературного режима, чего не сделаешь с естественной циркуляцией теплоносителя. Из-за повышения давления в контуре на фоне функционирования насоса усложняется устройство расширительного бака. Здесь он закрытого типа и разделён на две полости эластичной мембраной. Одна предназначена для излишка жидкости в системе, другая для сжатого воздуха, регулирующего давление в системе.
Расширительный бак можно располагать не только в наивысшей точке системы, но и возле котла. Для совершенства схемы проектировщики ввели в неё разгонный коллектор. Теперь, если отключится электроэнергия с последующей остановкой насоса, система будет продолжать работу в режиме конвекции.
Нижняя, верхняя, вертикальная и горизонтальная разводка
При верхней разводке магистральный трубопровод с горячим теплоносителем проходит через чердак, оттуда вода спускается в радиаторы. При нижней магистраль проходит внизу, от нее теплоноситель распределяется по стоякам и отопительным приборам.
Нижняя разводка подходит только для одноэтажных домов. Для маленького двухэтажного можно использовать верхнюю с естественной циркуляцией. Для большого коттеджа с двумя этажами без насоса обойтись не получится.
Вертикальную разводку можно видеть в старых домах городского типа: все батареи на всех этажах подключаются к общим стоякам. Стояков столько, сколько батарей (комнат, квартир) находится на одном этаже. В современных домах разводка горизонтальная: стояк один на этаж, от него теплоноситель распределяется по горизонтальным контурам.
Горизонтальная схема считается более удобной:
- есть возможность регулировать температуру в пределах одного помещения;
- проще отключить радиаторы выборочно;
- высокая ремонтопригодность.
Одним из самых простых, экономичных вариантов считается ленинградская система отопления. Схема для двухэтажного дома выглядит так: стояк, отходящий от котла, поставляет воду на оба этажа. Он является магистралью, выполняется из трубы большого сечения. На этажах от него горизонтально отходят более тонкие трубы.
Ленинградская система отопления.

Из них формируется два контура, на каждом этаже свой. Равномерность распределения тепла обеспечивается использованием балансировочных вентилей – их устанавливают на первом этаже перед контуром. Радиаторы включены в контуры последовательно по однотрубной схеме.
Примерная схема разводки для двухэтажного дома
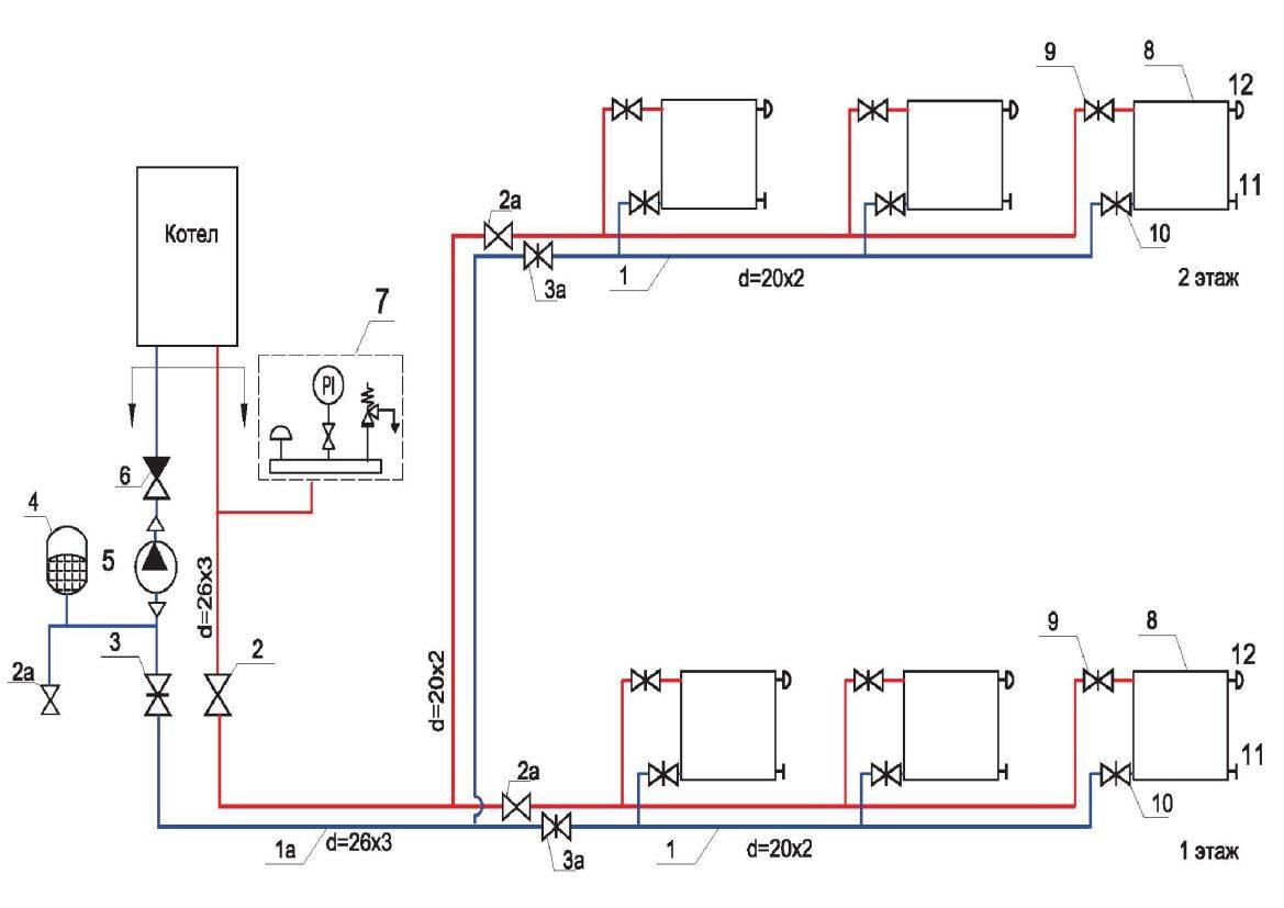
Давайте рассмотрим пример схемы водяного отопления для типичного двухэтажного строения, где будет предусмотрена ручная регулировка температуры в каждом помещении. Такая система монтируется с применением горизонтальной установки двух труб, а отопительные радиаторы будут иметь боковое подключение.
Трубы желательно использовать из металлопластика, поскольку они характеризуются высокой прочностью и долговечностью. Для монтажа металлопластиковых труб каких-либо особых навыков не требуется, а потому все работы вполне можно выполнить своими руками. Среди их преимуществ стоит отметить следующее:
- устойчивость к коррозии;
- в полимерных изделиях практически никогда не бывает засоров;
- доступная цена;
- все работы производятся с помощью резьбовых и прессовых соединений, при этом не требуется специальный паяльник.
Недостатком является лишь высокий коэффициент теплового расширения, что в случае неправильного монтажа и эксплуатации может вызвать протечки.
Конечно, никто не запрещает использовать и полипропиленовые трубы, но в случае с ними вам понадобится специальный паяльник немалая выдержка, поскольку допускать ошибок при пайке ни в коем случае нельзя.
Стальные трубы практически невостребованные для организации отопления в частных домах, поскольку материал крайне неустойчив к воздействию коррозии. В ряде случаев могут применяться трубы из оцинковки или нержавейки, а для их соединения используются резьбовые соединения, но для таких работ необходимы соответствующие навыки и оборудование. Если имеется достаточно денег, то можно купить медные трубы, которые прослужат еще и вашим внукам с правнуками.
При составлении проекта отопления двухэтажного дома следует тщательно высчитать требуемое количество разводных, угловых и соединительных элементов системы, а также разметить места установки заглушек с кранами. Аналогичным образом следует определить количество радиаторов и их секций. Одновременно не забудьте о крепежных кронштейнах для установки радиаторов, которые можно просчитать, определившись с его размерами.
На схеме должны присутствовать места установки расширительного бака, насоса и самого котла. Как уже выше говорилось, котел можно выбрать любой, но при этом нужно руководствоваться тем, какое топливо наиболее востребовано в вашей местности и, естественно, собственных возможностей. Обычно в новых домах уже давно используют газ, поскольку твердое топливо отличается низким уровнем экологичности.
Если размеры котла небольшие, то его вполне можно разместить прямо в доме, например, в кладовой или мастерской. Современные котлы можно вешать прямо на стену, что позволяет экономить немало места. В спальнях или других жилых помещениях его установка не рекомендуется, поскольку при работе он может выделять шум. Для большеразмерных котлов следует оборудовать отдельное помещение или даже целую пристройку около дома.





































